In vendita €715.000 - Rustici e porzioni
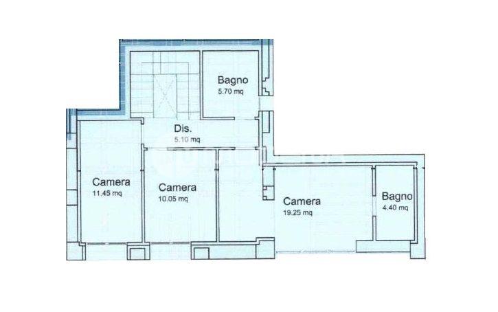
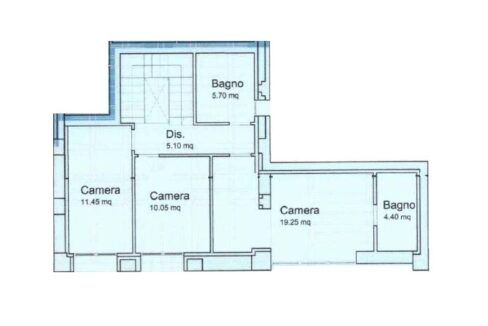
Vendesi porzione di rustico completamente ristrutturata in classe A di mq 238 comm.li, composta da porticato di mq 64, ingresso sulla sala, cucina abitabile, bagno al piano terra; piano primo con due camere da letto, un bagno, un’altra camera da letto con bagno padronale. Giardino privato di mq 950. Possibilità di garage a parte. Il borgo si compone da casa padronale con tre unità abitative ed ex fienile composto da due unità immobiliari con ingresso indipendente e giardino privato. Gli immobili verranno consegnati con consolidamento delle fondazioni e dei piani, tetto rifatto in legno, deumidificazione e impermeabilizzazione del piano terra, cappotto esterno, tinteggiatura esterna, infissi esterni nuovi, fogne, marciapiede e recinzioni giardini privati. Le foto sono generiche e potrebbero non corrispondere all’immobile finito.




















