P17 S. DONNINO

P17 S. DONNINO
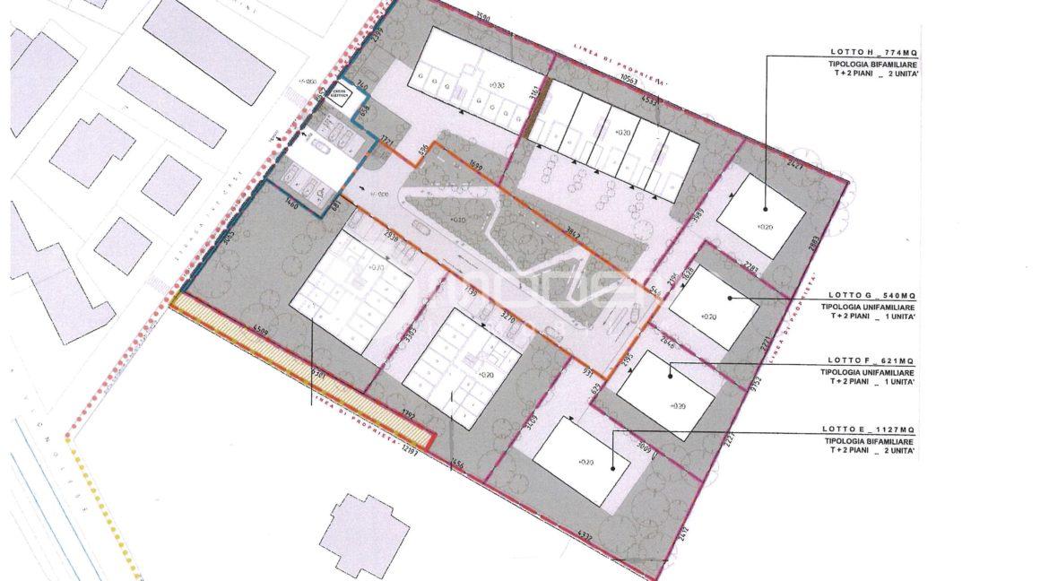
In vendita €220.000 - Lotti
P17 650 mq

4 lotti di circa 650 mq cadauno con 350 mq di superficie utile, con possibilità edificatoria di villa singola o bifamiliare. A.p.e. in corso di definizione. Vendita del singolo lotto urbanizzato. DA € 220.000 Possibilità del costruito.

Additional Details

  • :

Compare Properties

Compare
You can only compare 4 properties, any new property added will replace the first one from the comparison.