In vendita
€139.000 €160.000 - Commerciali
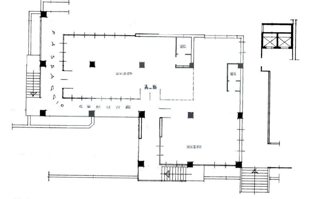
In palazzo completamente ristrutturato vendesi ufficio/negozio di mq 200, da rivedere internamente, al piano rialzato con otto vetrine. internamente l’immobile si presta ad essere suddiviso in vari ambienti, possibilità di openspace. Classe energetica in corso di definizione.
























